Dieses Gebäude erscheint wie ein bewohntes Bild. Es besteht aus einem einfachen Volumen, auf dessen Glashaut ein durchgängiges, farbiges Muster aufgebracht ist. Diese Behandlung gibt dem Haus zunächst einen eigenen Maßstab und überraschende Skulpturalität sowie ein unverwechselbares und lebendiges Erscheinungsbild in seinem Umfeld. Das Bild ist aus der monumentalen Vergrößerung einer mikroskopischen Aufnahme eines der hier produzierten Präparate entwickelt worden. Somit wird es auch zum Symbol der Nanowelt in der biologischen Forschung, in die der Besucher beim Betreten des Hauses eintaucht. Als architektonisches Element fasst die Fassade die verschiedenen Teile des Hauses zusammen, als technisches dient sie als schützende Haut gegen Sonne, Wind und Regen.
Dieser Neubau ist Teil des Forschungscampus der Firma Boehringer Ingelheim Pharma KG am Standort Biberach; er enthält im Wesentlichen Labore und Büros. Sein siebengeschossiger, lang gestreckter Baukörper nutzt ein gegebenes Baufeld aus, um eine direkte bauliche und funktionale Verbindung zu einem angrenzenden Bestandsgebäude zu ermöglichen. Als Fokus und Verbindungselement ist im Erdgeschoss ein großzügiges Foyer vorgesehen, das auch als Kreuzungspunkt mehrerer Wege auf dem Gelände dient.

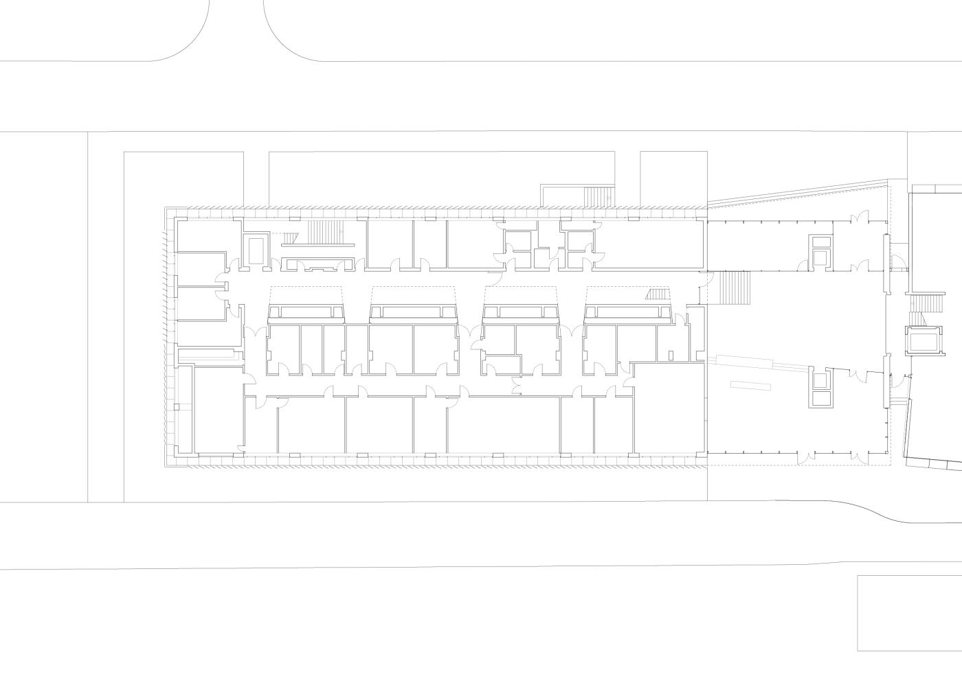
Der Laborteil des Gebäude ist auf einer sehr rationalen Verteilungsstrategie für die Haustechnikmedien aufgebaut: In der Mittelzone befinden sich hoch installierte Bereiche und die horizontalen und vertikalen Hauptstränge, zur Fassade hin lässt die Dichte technischer
Installation nach.
Das Gebäude besteht aus zwei Teilen: ein natürlich belüfteter Bürotrakt auf der Westseite und eine hochinstallierte Laborzone auf der Ostseite. Die beiden kommunizierenden Teile werden über ein dazwischen liegendes Atrium erschlossen, das Tageslicht in die Tiefe des Gebäudes führt. Als Konvektionsraum ermöglicht das Atrium die natürliche Querlüftung und nächtliche Kühlung der Räume im Büroteil des Gebäudes. Eine offene Treppe innerhalb des Atriums dient als direkte Verbindung zwischen den Ebenen.


Aufgabe
- Labor- und Bürogebäude
Bauherr
- Boehringer Ingelheim Pharma GmbH & Co. KG
Daten
- Bruttogeschossfläche: 10.150 m²
- Wettbewerb: 2000, 1. Preis
- 2000 — 2002
Standort
- Birkendorfer Straße 65, 88397 Biberach an der RißKarte öffnen
Auszeichnungen
- BDA-Auszeichnung Guter Bauten 2005, Auszeichnung
- Best of Europe - Colour 2004, Lobende Erwähnung
- RIBA Award 2003
Projektteam
- Jürgen Bartenschlag
- Denise Dih
- Julius Klaffke
- Annette Kreyerhoff
- Claus Marquart
- Konrad Opitz
- Marcus V.d.oelsnitz
- Florian Völker
- Andreas Weber



