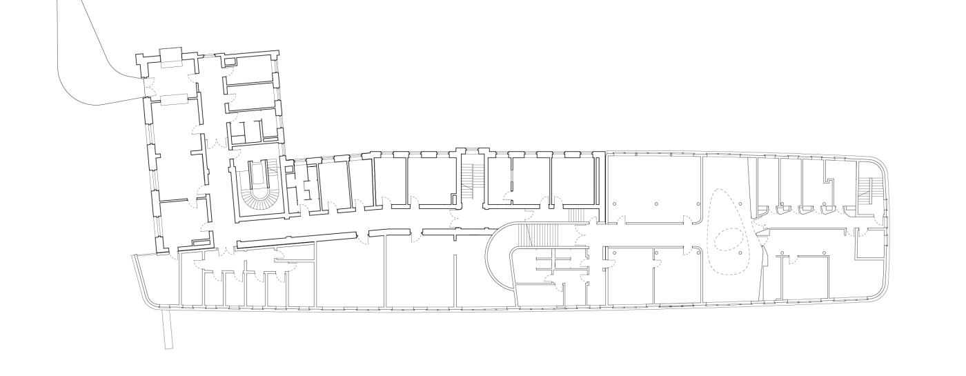
Der Neubau des Polizeiabschnittes 28, vormals Abschnitt 34, und der Feuerwache für das Berliner Regierungsviertel ergänzt ein einzelnes, jetzt frei stehendes Gebäude aus dem 19. Jahrhundert am Rande eines ehemaligen Güterbahnhofgeländes unmittelbar an der Spree. Der einhüftige Seitenflügel dieses repräsentativen Altbaus wird benutzt, um einen neuen Gebäudeteil zu erschließen, der sich als gläserner, schwebender Körper an die steinerne Brandwand des bestehenden Baus schmiegt. Das unmittelbar umgebende Gelände dient als Fahrzeughof. Unter dem Anbau entstehen überdachte Parkplätze für die Einsatzfahrzeuge von Polizei und Feuerwehr.
Da das Ensemble etwa 20 Meter entfernt, von der Straße abgewandt und ungefähr 6 Meter tiefer als das Gehwegniveau steht, erfolgt die fußläufige Erschließung des Altbaus über eine Brücke zur Bel-étage. Der „Einstieg“ durch das Fenster einer repräsentativen, historischen Fassade ist einerseits ein pragmatischer Schritt und andererseits eine aus der Surrealität des Standorts entsprungene Geste.
Die Fassade des Anbaus zelebriert mit ihren großen Glas- „Schindeln“ den formalen und materiellen Kontrast zwischen einem Berliner Stadtfragment und seiner neuen Ergänzung. Die verwendeten Farben Rot und Grün spielen sowohl mit den Erkennungsfarben der beiden Benutzer des Gebäudes wie auch mit dem Farbkontrast zwischen dem bestehenden Mauerwerksbau und den ihn umgebenden dichten Baumgruppen.

Die Erweiterung ergänzt den einhüftigen Seitenflügel des Bestandsgebäudes; an die bestehende Brandwand wird ein neuer zweigeschossiger Riegel angelegt, unter dem Fahrzeuge der Polizei und Feuerwehr untergestellt werden. Die Unterbringung der Polizei im Altbau macht dessen repräsentative Seite zur Eingangsfassade der Wache, die über eine Brücke durch ein ehemaliges Fenster in der Bel-étage erreicht wird.
Die Ganzglasfassade besteht aus Glasplatten mit einer Höhe von 65 cm und unterschiedlichen Längen zwischen 1 und 2,5 Meter. Die leichte Neigung der Platten führt zu einer Spiegelung des Himmels auf die Fassade, die den Kontrast zur matten Materialität des Altbaus betont. Vor den Fenstern bilden diese Platten große bewegliche Sonnen- und Blendschutzlamellen, die hier zu 85% in allen anderen Bereichen durchgängig mit Farbe bedruckt sind. Die Lamellen werden direkt von den Nutzern geöffnet und geschlossen.





Aufgabe
- Umbau und Erweiterung eines ehemaligen Frachthofgebäudes
Bauherr
- Senatsverwaltung für Stadtentwicklung und Wohnen
Daten
- Bruttogeschossfläche: 6.900 m²
- Wettbewerb: 1999, 1. Preis
- 2001 — 2004
Standort
- Elisabeth-Abegg-Straße 4, 10557 BerlinKarte öffnen
Auszeichnungen
- Architekturpreis Berlin 2006, Auszeichnung
- RIBA Award 2005
- AIA Award 2005
Projektteam
- Jürgen Bartenschlag
- Lara Eichwede
- Andrea Frensch
- Matthias Fuchs
- Sven Holzgreve
- Marcus Hsu
- Daniela McCarthy
- Konrad Opitz
- Florian Völker
- Nicole Winge



