
Am Eingang zur nördlichen Wallhalbinsel, gegenüber der historischen Altstadt von Lübeck, entsteht auf einem Grundstück, auf dem sich früher ein einfaches Lagerhaus befand, ein neues Hotel. Zuallererst wird hier für den Besucher ein zeitgemässer Ort der Gastlichkeit errichtet. Darüber hinaus soll die Struktur und Atmosphäre dieses ehemaligen Güterumschlagplatzes respektiert und fortgeschrieben werden. Vorgefundene architektonische Elemente wie das flach geneigte Satteldach mit breitem Überstand oder die abgehängten Laubengänge werden aufgegriffen und neu interpretiert. Das Motiv der Ladeplattformen geht in eine Terrasse über, die sich mit einer einladenden Freitreppe zur Stadt öffnet.
Die Gebäudehöhe gleicht der Nachbarschaft, die Giebelseiten in Mauerwerk spiegeln die benachbarten Schuppen. Ihre repräsentative Gestaltung bildet eine markante Geste, die Respekt vor der historischen Substanz mit zeitgenössischer Großzügigkeit verbindet. Diese Giebelseiten sind mit einem horizontalen Sockelband verbunden, sodass das Gebäude insgesamt einem großen Lastkahn gleicht, auf dem rot gefasste Hotelzimmer wie Container lagern. Hier wird die Hybridkonstruktion des Gebäudes lesbar, bei der vorgefertigte Holzmodule auf einem massiven Unterbau gestapelt werden. Mit dieser Bauweise und dem Einsatz des CO2-neutralen Baumaterials Holz steht der Entwurf für einen bewussten Umgang mit Ressourcen.
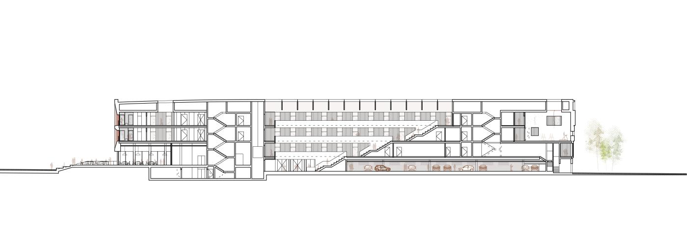
Der zum Innern der Halbinsel orientierte Eingang führt den Gast in einen horizontal proportionierten Empfangsbereich. Dann öffnet sich der Raum vertikal zu einem gebäudehohen, tagesbelichteten Atrium. Wechselnde Blickbeziehungen zwischen Lobby, Atrium, Barbereich und Hafen begleiten die Bewegung durch das Erdgeschoss. Schlusspunkt dieser Promenade bildet das voll verglaste Restaurant mit seiner Terrasse und Blick auf die Altstadt. Im Atrium gelangt man über eine Freitreppe in die Hotelgeschosse. Die Zimmer selbst sind einfach und ganz in Holz gehalten, der vorgelagerte Austritt bietet dem Gast ein wunderbares Panorama über Lübeck.





Aufgabe
- Hotel mit Restaurant, Konferenz- und Fitnessbereich
Bauherr
- PIH Entwicklungs- und Erschließungsgesellschaft mbH in Zusammenarbeit mit PRIMUS developments GmbH und DSBC Immobilien GmbH
Daten
- Bruttogeschossfläche: 9.260 m²
- Wettbewerb: 2019
Standort
- Willy-Brandt-Allee, 23554 LübeckKarte öffnen
Projektteam
- Federica Dino
- Axel Ibarroule
- Taehwan Kim
- David Wegener
