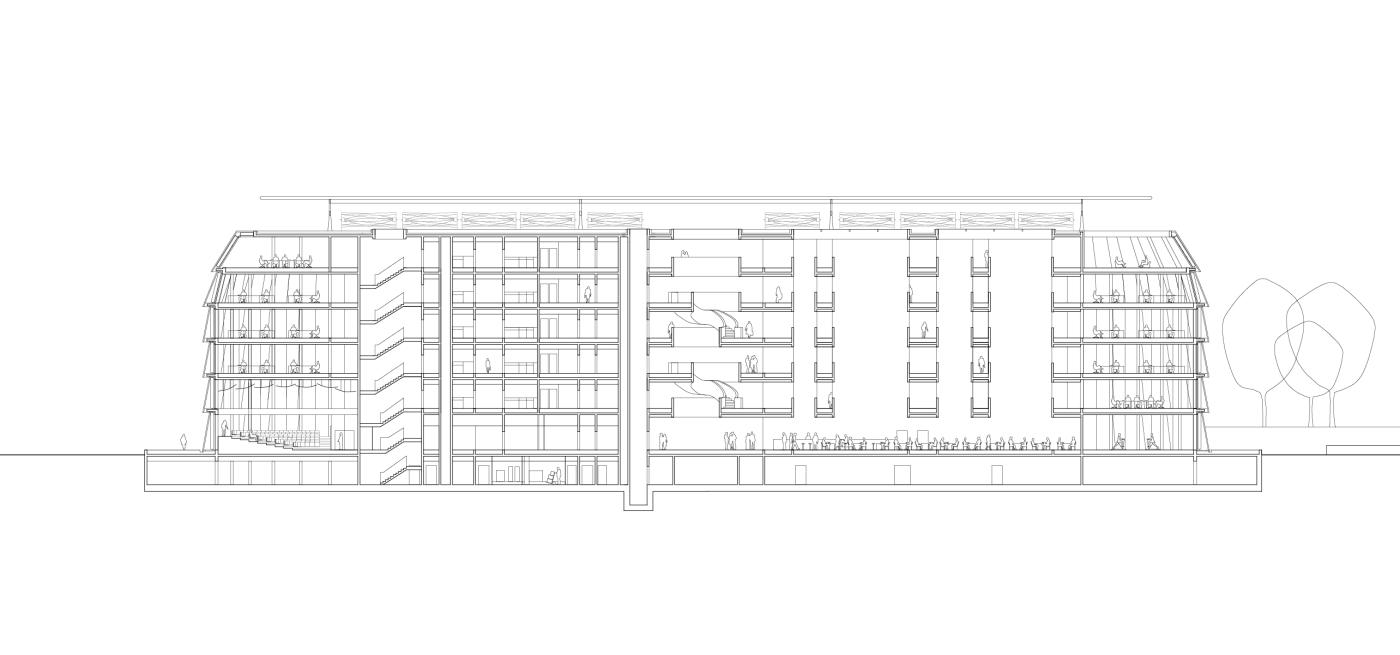
Das Verwaltungsgebäude für die FIH Bank, am Ende der langen Pier von Langelinie gelegen, verbindet die stereometrisch einfache Kubatur der benachbarten Lagerhäuser des ehemaligen Seehafens mit der Funktionalität eines zeitgenössischen, klimatomorphen Nullenergie-Gebäudes.
Zur Stromerzeugung bündelt und lenkt das markante Flugdach die vorherrschenden westlichen Winde auf geräuscharme Windturbinen auf dem Dach. Die zweischichtige Glasfassade sorgt für gute Tagesbelichtung bis in die Tiefe des Gebäudes und funktioniert gleichzeitig als thermischer Puffer. Die äußere Schicht ist mit einer Photovoltaikbeschichtung versehen und dient so als Energiekollektor. Sie bietet auch Schutz gegen Wind und Lärm und ermöglicht, dass alle Fenster zur natürlichen Belüftung geöffnet werden können. Flexible Sonnenschutzlamellen in der Zwischenzone bestehen aus farbigen Lochblechen, deren Rottöne sich am traditionellen Backstein der Umgebung orientieren. Ihre Ausrichtung und damit die Lichtbedingungen an jedem Arbeitsplatz können individuell reguliert werden, sodass sich mit der Nutzung des Gebäudes die Erscheinung im Wechsel der Tages- und Jahreszeiten ändert.
Im Inneren gewährleisten mit Meereswasser aktivierte Betondecken konstante Temperaturen über das ganze Jahr. Die abgerundete Gesamtform verbessert das Verhältnis von Volumen zu Hüllfläche, mindert Luftturbulenzen und erlaubt gleichzeitig die Orientierung aller Räume zum Wasser.


Aufgabe
- Bürogebäude mit öffentlichen Nutzungen
Bauherr
- ATP Ejendomme A/S
Daten
- Bruttogeschossfläche: 20.130 m²
- Wettbewerb: 2008, 1. Preis
Standort
- Langelinie Allé 47, 2100 København, DänemarkKarte öffnen
Projektteam
- Peter Apel
- Matthias Sauerbruch
- Heiko Weissbach



