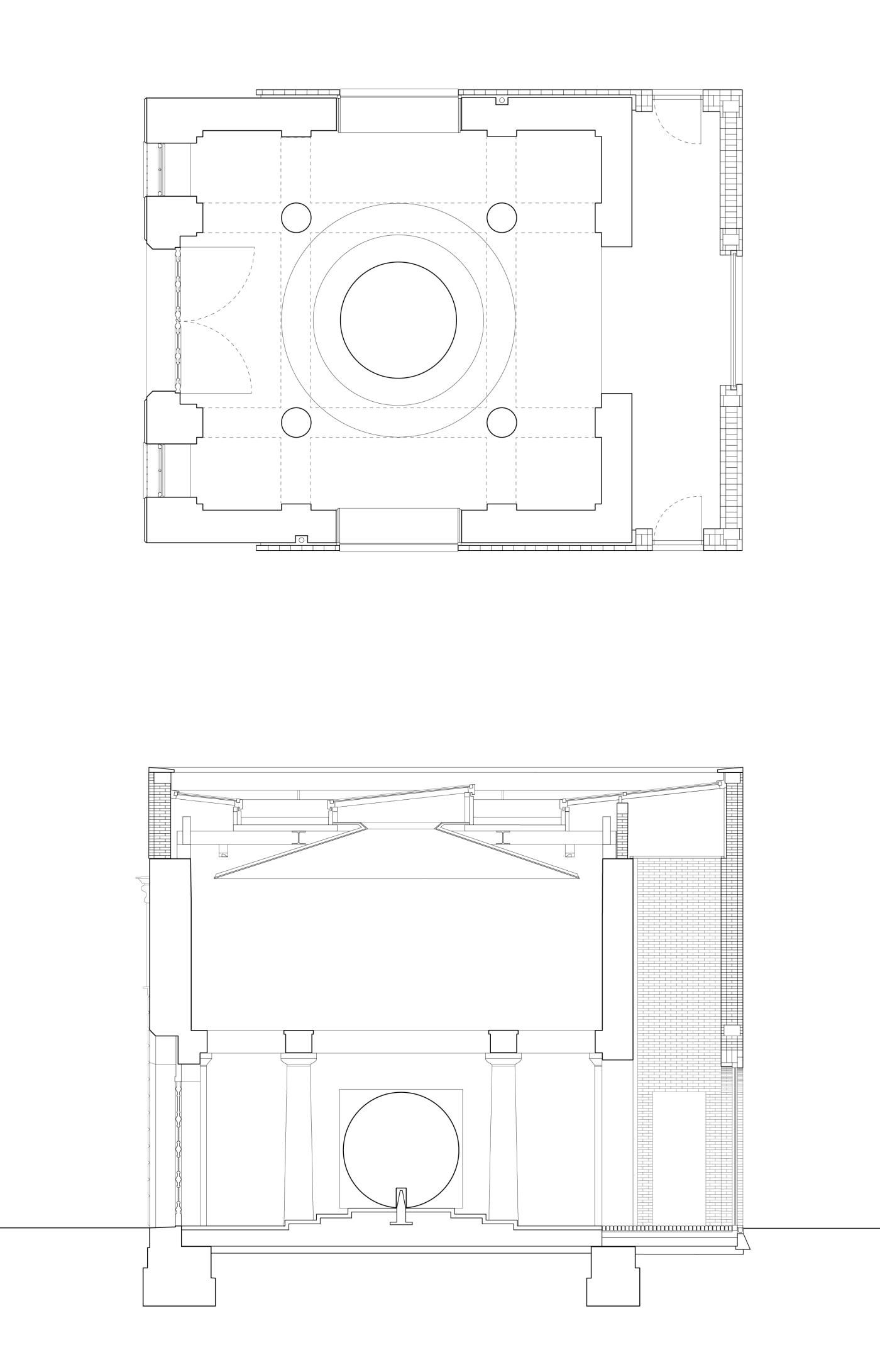
Das sogenannte Türkentor ist das einzige verbleibende Fragment einer Kaserne aus dem frühen 19. Jahrhundert an der Münchner Türkenstraße. Nach Kriegszerstörung und Abriss in den 1970er-Jahren als Memento erhalten, wartete dieses ehemalige Eingangsportal jahrzehntelang auf eine neue Nutzung. Im Zuge des Neubaus des Museum Brandhorst wurde es als Teil des Münchner Kunstareals aktiviert und als Ort für Walter De Marias Large Red Sphere ausgewählt.
De Marias Installation aus poliertem roten Granit gehört in eine Serie verwandter Arbeiten in Paris und auf der japanischen Museumsinsel Naoshima. In München entwickelt sich aus der Beziehung zu dem Bestandsbau in der Achse des Klenze-Portals der Alten Pinakothek eine sehr spezifische Qualität. In enger Zusammenarbeit mit dem Künstler wurde die klassizistische Straßenfassade des Baus erhalten und konserviert und der ruinöse Rest des Gebäudes mit einer neuen Mauerwerkshülle geschützt und erweitert. Auf der Rückseite des Gebäudefragments entstand zwischen der neuen Haut und dem Bestandsgemäuer eine schmale Eingangshalle, die den Innenraum mit einem Rundbogenfenster zum Museumsareal öffnet.
Im Inneren lebt das Werk von dem Kontrast zwischen den erodierten Oberflächen des Vorgefundenen und der perfekten „Urform“ der spiegelnden Steinkugel. Der Raum wird durch quadratische Lichtöffnungen über und seitlich der Kugel belichtet, Lichtfugen im Dach betonen die Plastizität der Umfassungswände. Skulptur und Architektur verschmelzen zu einem Ort der Ruhe und meditativen Feierlichkeit.


Aufgabe
- Umbau eines denkmalgeschützten Gebäudefragments für eine dauerhafte Installation von Walter de Maria
Bauherr
- Freistaat Bayern / Staatliches Bauamt München; Stiftung der Freunde der Pinakothek der Moderne
Daten
- Bruttogeschossfläche: 141 m²
- 2007 — 2010
Standort
- Türkenstraße 17, 80333 MünchenKarte öffnen
Projektteam
- Felix Habich
- Falco Herrmann
- Ilja Leda
- Matthias Sauerbruch
- Anja Vogl
- David Wegener



