The Kirchberg plateau, one of the most attractive office locations in Luxembourg, is the site of a new urban quarter that includes offices and shops as well as cultural facilities. Ernst & Young commissioned a new headquarters on the prestigious Avenue J. F. Kennedy. Besides being a corporate centre, the design provides an open, vibrant public plaza that enhances the neighbourhood with a social focal point.
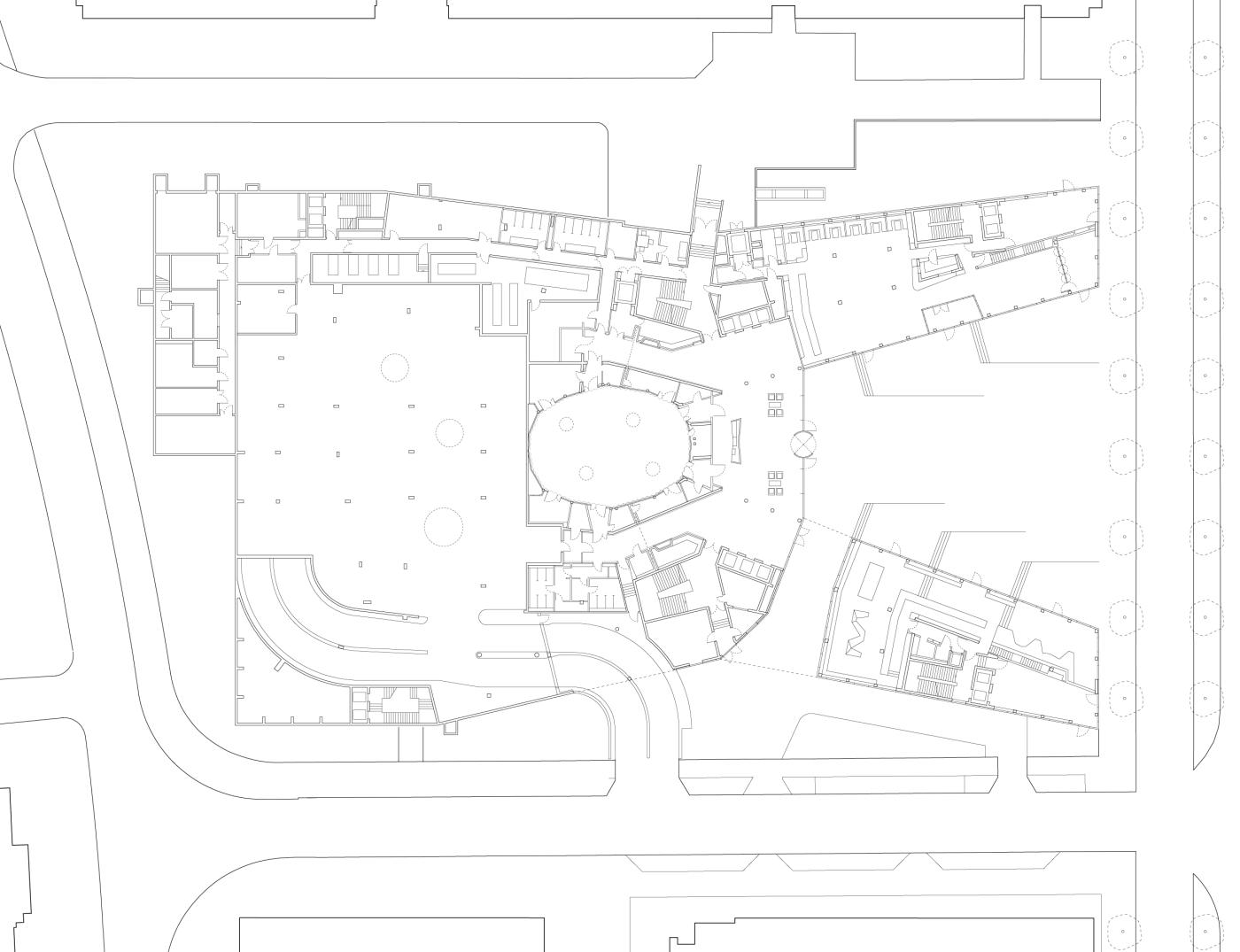
Within the constraints of a strictly defined city block structure, the contours of the building describe a pair of trapezoidal courtyards of quite different character. The frontage onto the avenue is entirely occupied by restaurants and cafés grouped around a welcoming plaza that is spanned by a large, translucent roof. The second courtyard, which is planted and open to the sky, has a markedly different and rather private atmosphere. Between the courtyards, a glazed atrium rises through all the storeys, connecting the lifts and main staircases on both sides.
Along the side streets, the building draws back from the plot boundary. While the reasons for these indentations are primarily functional, they give a somewhat dynamic articulation to the building. This effect is enhanced by the treatment of the façades, which combine transparent glazing, printed glass panels and colour-coated metal panels. The colour play between the façades, both inside and out, generates an oscillating image that suggests movement and lightness.




brief
- Office building with conference rooms, auditorium, retail, restaurant
client
- Kirchberg Property Company SCA
data
- gross floor area: 30.400 m²
- competition: 2011, 1st prize
- 2012 — 2015
Location
- 35e, Avenue John F. Kennedy, 1855 LuxembourgOpen map
project team
- Jürgen Bartenschlag
- Marc Broquetas
- Philipp Hesse
- Michaela Kunze
- Ilja Leda
- Axel Linde
- Tanja Reiche-Hoppe
- Maria Saffer
- Christian Alexander Seidel
- Markus Weber
- Daniel Wedler
- David Wegener



