
The master plan for the site of the former Postscheckamt in Berlin Kreuzberg reintegrates the existing high-rise from the 1970s into the urban structure, establishing a connection between the Wilhelminian style quarters nearby and the urban landscape of post-war modernism. On the previously commercially used site, a spatial weave of typological diversity and quality public space unfolds between the quiet residential area by the park and the vibrant neighbourhood by the canal.
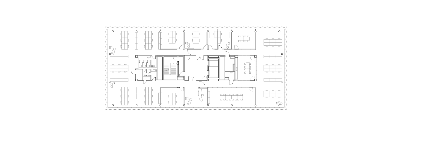
Part of this ensemble is an eight-storey office building directly adjacent Hallesches Ufer, which, together with a neighbouring housing development, encloses a jointly used courtyard. The ground floor with restaurant and retail spaces opens up invitingly on all sides and provides views into the landscaped inner courtyard. Each floor is divided into two units and can be configured either as a single or multi-tenant model. The building's rational structure with a compact central core, optimized structural grid and surrounding ribbon windows maximizes daylighting and allows flexible floor plans for a wide range of office concepts.
The building's materiality is influenced by the former industrial character of Berlin's Kreuzberg district. The ribbon façade is characterised by the use of contoured ceramics glazed in green tones. This rather robust cladding alternates with the filigree glazing of the window bands. A gentle folding of the parapet and the outer window panes sets the strict horizontality of the façade in motion. Depending on the time of day and the viewer's position, the reflections of glass and ceramics offer a constantly changing appearance.
Overall, the building elements of rough and refined materials complement each other both along the façade and within the interiors, giving the building a harmonious appearance of simple elegance and lightness.











brief
- Office building with café and retail space
client
- Art Invest Real Estate
data
- gross floor area: 10.040 m²
- 2019 — 2024
Location
- Hallesches Ufer 40-60, 10963 BerlinOpen map
project team
- Lou-Salome Bienvenu
- Sibylle Bornefeld
- Mengyuan Cao
- Anita Fabbiano
- Katharina Fleck
- Mareike Lamm
- Lucia Martinez Estefania
- Ilona Priwitzer
- Rashi Shah
- María Silvestre Martinez
- Rostyslav Skyba
- Marie Sophie Starlinger
- Alina Tapley
- David Wegener
- Aleksandra Wypior
