 
 Located in the town of Obernai in Alsace, this building for the Hager Group was conceived as a forum in the best sense of the word: a place for communication where ideas, information, innovation and skills come together – a physical as well as virtual centre.
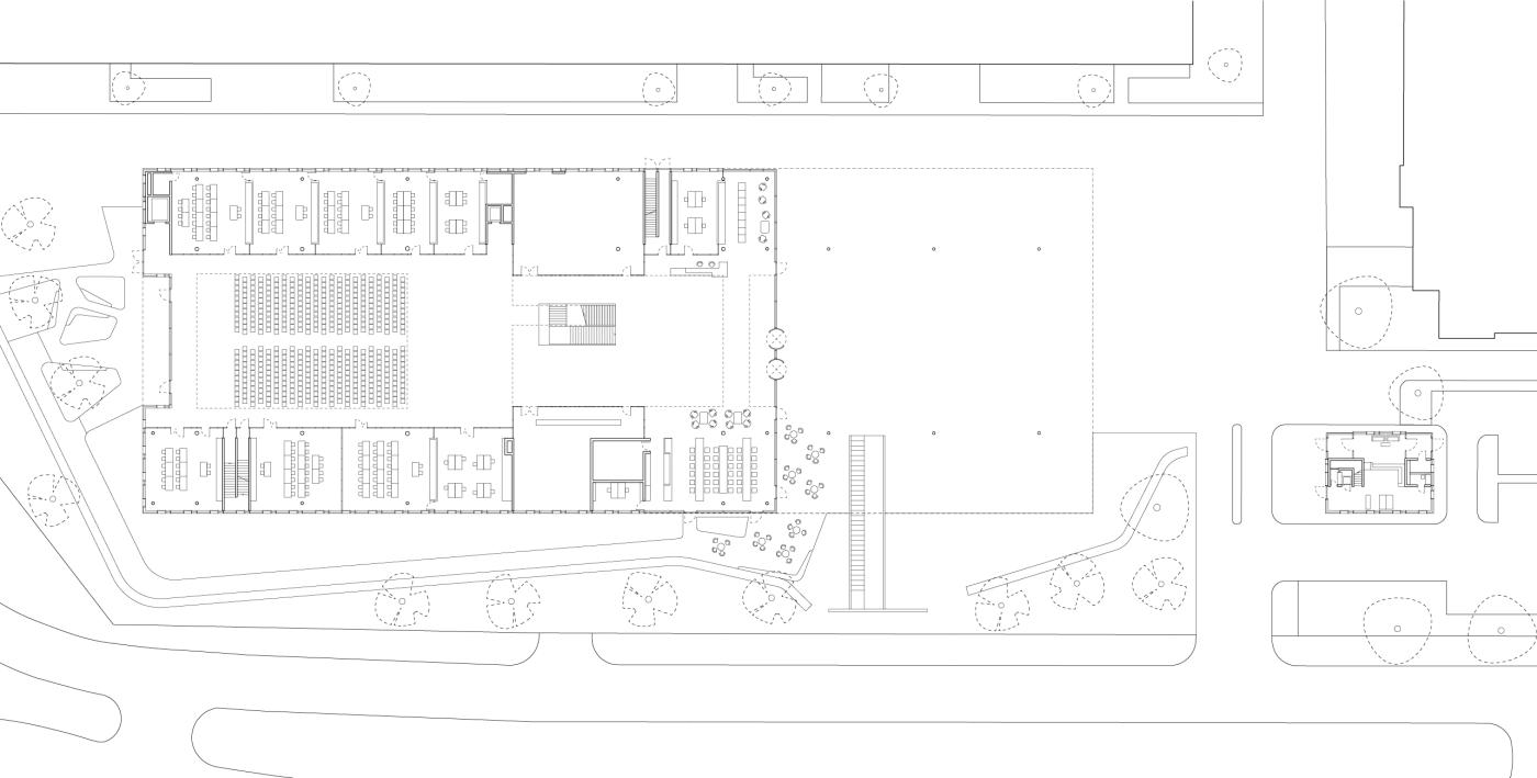
In the heterogeneous landscape of the urban periphery, the large roof with its elegant wooden truss structure serves as an organising element that unites all of the functional areas. On plan, the offices, meeting rooms and studios are laid out along the two bars of a letter H, lining two generous atria that are suitable for a variety of purposes such as group visits, exhibitions, large-scale meetings and special events. The roof extends southwards to form a covered forecourt that welcomes visitors just as they arrive inside the main gate to the firm’s premises. As this forecourt is also crossed by many internal circulation routes, it forms the natural focal point of the site as a whole.
In its materials and rhythm, the building’s façade is a poetic interpretation of the work that is done on the site: the mechanised production of metal parts. In its unpretentious appearance, its flexibility and its robust logic, the design belongs to the family of industrial buildings around it. A closer look, however, reveals the Hager Forum’s sophistication in terms of its programme, performance, technology and material, coupled with precision in planning and detail – a subtle yet effective statement of the company’s philosophy.
 
  
  
 

 
 

brief
- Company showroom with exhibition spaces, education centre, lecture hall, offices, café
data
- gross floor area: 7.400 m²
- competition: 2012, 1st prize
- 2012 — 2015
Location
- 70–122 Boulevard de l‘Europe, 67215 ObernaiOpen map
awards
- German Design Award 2016, Special Mention
project team
- Sibylle Bornefeld
- Anna Czigler
- Andrea Frensch
- Stephanie Heese
- Julia Knaak
- Lina Lahiri
- Nils Lindhorst
- Maria Saffer
- Matthias Sauerbruch
- Vesselina Shushulova
- Nora Steinhöfel



