The new campus of the Federal University of Applied Administrative Sciences will be built in Lichtenhagen, a district of Rostock, originally designed as a large housing estate from the 1970s to the 1990s and now home to about 13,000 people. The new university project responds to the large-scale building forms within the neighbourhood and continues the differentiated, green public and semi-public outdoor spaces.
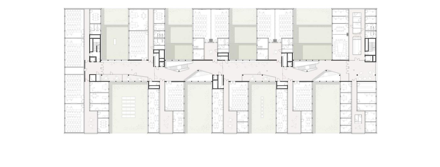
Three elongated volumes frame and condense a public park, creating two main areas, each with a character of their own: A raised garden plateau between the two residential blocks for the students and a ground-level green centre in front of the university building, which, situated under old trees, offers gathering places for leisure, sport and learning to the whole neighbourhood.
The ground floor areas are provided for public use: cafeteria, lecture halls, library in the university area and leisure facilities for all students under the seven-storey high residential blocks. Together with the colourful treatment of the façades, the repetitive nature of the modular dormitories is broken up by the building's form, which is slightly bent several times. The corridors of the upper floors are also articulated by the kinks to form distinct spatial sections, each of which contains a communal kitchen as well as two apartments for special needs.
The 130 m long university building, conceived as a "groundscraper", encloses the campus to the north. The defined spatial edge is softened on the upper floors by alternating pavilions and courtyards, while the ground floor façade remains transparent and offers views into the building's facilities from a sheltered walkway. Internally, the building is organised along a four-storey circulation route that links the classrooms and administrative offices of the various faculties as well as the many other functions of a modern educational institution. Designed as a generous, naturally lit circulation space, this internal street creates a variety of additional shared areas for self-organised learning.
The sustainability concept breaks new ground, especially in the area of grey energy: The entire project is being built using a resource-efficient, largely CO2-reduced and low-emission timber hybrid and timber module construction method. For a project with a scope of 1,000 module units, this is unprecedented.
 
 



 
 
 
 brief
- University campus comprising two residential buildings and a teaching building with lecture halls, seminar rooms, refectory and library
 
client
- Staatliches Bau- und Liegenschaftsamt Rostock
 
in cooperation with
- Kaufmann Bausysteme GmbH mit Primus Developments GmbH
 
data
- gross floor area: 51.200 m²
 - competition: 2023, 1st prize
 - 2026
 
Location
- Möllner Str., 18109 RostockOpen map
 
project team
- Peter Apel
 - Herman Appelros
 - Jürgen Bartenschlag
 - Edvard Björkqvist
 - Sibylle Bornefeld
 - Alessandro Bucchi
 - Mersede Eyni
 - Zirui Fu
 - Stefan Fuhlrott
 - Julia Garcia
 - Tom Geister
 - Mina Gospavic
 - Asya Güney
 - Lea Hirschmann
 - Hannah Idstein
 - Lariza Johnen
 - Krenare Juniku
 - Weronika Kessler
 - Farah Khattab
 - Philipp Koch
 - Denis Kolesnikov
 - Nisa Kömürcü
 - Celia Landry
 - Catarina Medroa
 - Denise Murray Schlegel
 - Isis Perez Martin
 - Meta Popp
 - Ilona Priwitzer
 - Amelie Schleifenheimer
 - Hilary Simon
 - Yinan Sun
 - Ludwig Thanhäuser
 - Gregory Then
 - Ryan Wyrostok
 - Lu Zhang
 



