The particular design for a new Museum of Contemporary Art and a Moving Image Centre was generated as a response to its site at Circular Quay – once the humble beginning of Sydney Harbour and today the cultural mile of a bustling 21st century metropolis.
The design responds to the scales of the surrounding urban context: the volume towards the humble dimensions of the Victorian houses on George Street was reduced, while on the waterside the design corresponds to the monumental scale of the Quay, the adjoining elevated expressway and central business district.
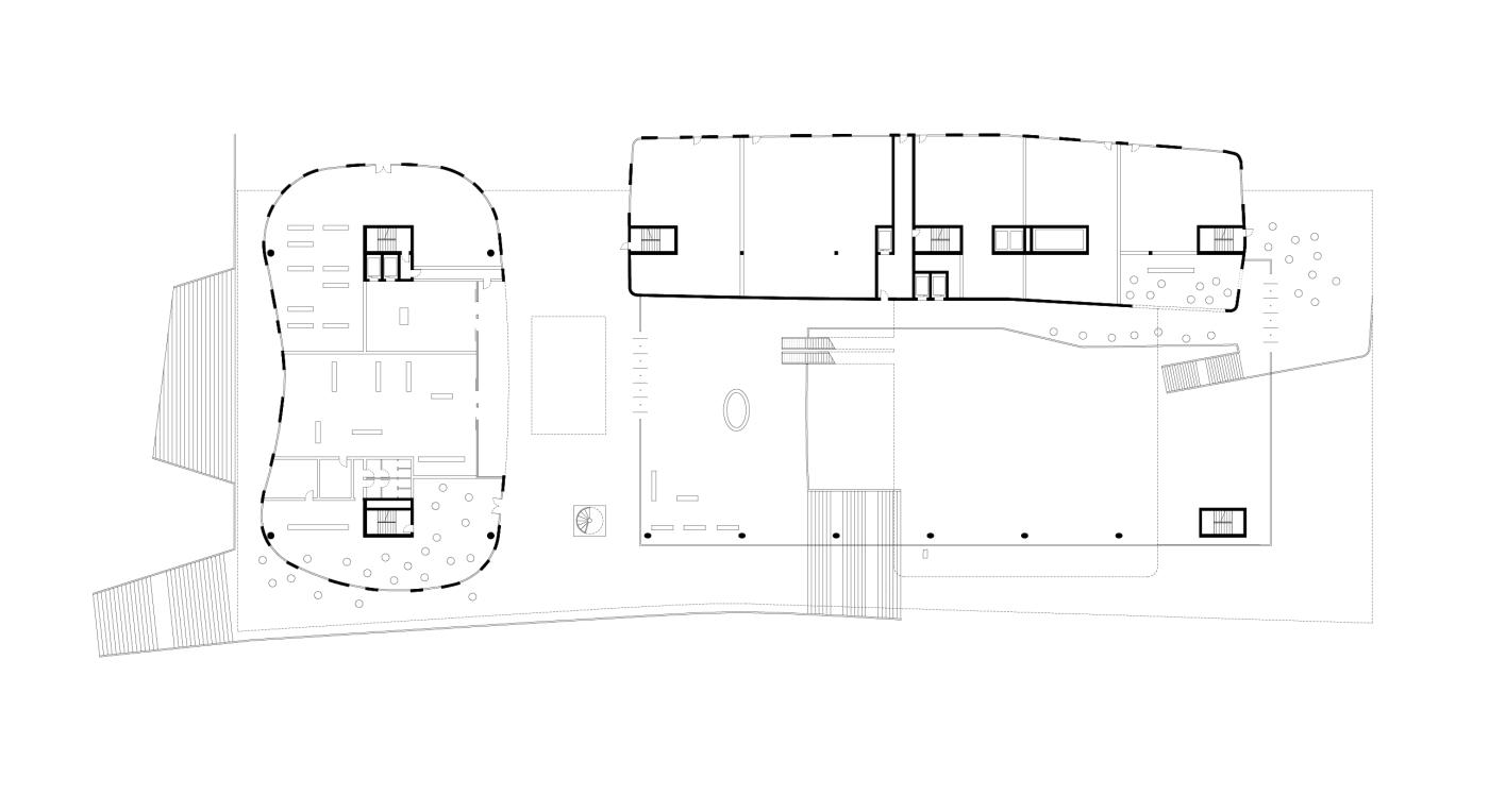
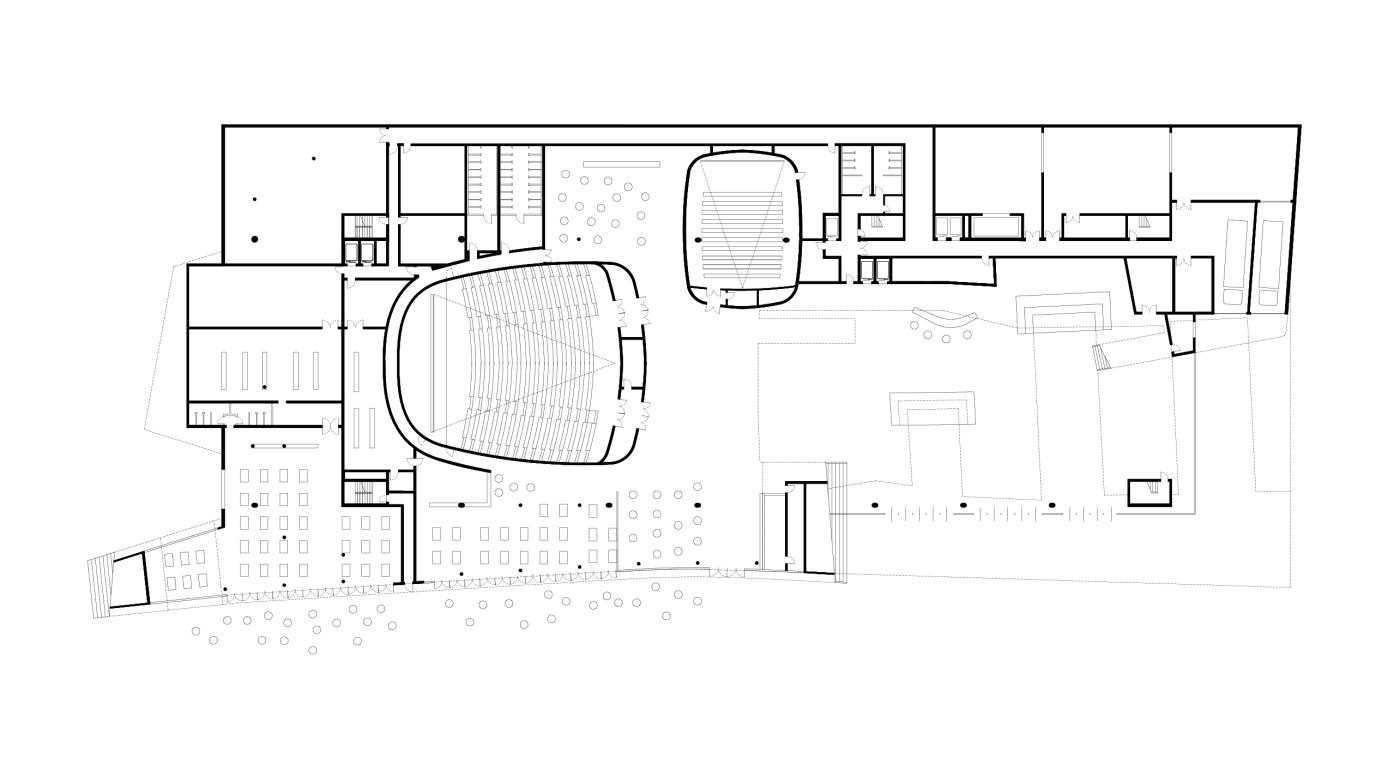
The museum complex combines four significant building elements into one composition: the ‘floating’ gallery rests on a pair of three-storey buildings enclosing a large public space on the quay. The single level, top-lit gallery provides ideal spaces for a fast-changing set of exhibitions. The buildings along George Street house retail space and rental offices. In amongst these volumes, the Harbour Gallery provides a large multi-disciplinary public space, oriented towards the quayside. There are two generously sized cinemas, accessible from this space as well as restaurants and bars.
However, the Harbour Gallery itself is seen as an idiosyncratic new public space that can act as a multi-disciplinary ‘urban room’ freely accessible to everybody. It provides an interface between the city and its cultural facilities, between high and low culture, between history and the present.


brief
- Museum, cinemas, restaurants, retail, function rooms and offices
client
- City of Sydney
data
- gross floor area: 28.000 m²
- competition: 2001, 1st prize
Location
- Sydney, 140 George St, The Rocks NSW 2000, AustralienOpen map
project team
- Lara Eichwede
- Andrea Frensch
- Jan Liesegang



