
The growing significance of Médecins Sans Frontières called for the construction of a new headquarters in Geneva’s Morillon district, in the vicinity of consulates and institutions of the United Nations.
The international organisation for medical emergency aid must be able to react immediately and worldwide to acute developments. Specialised teams in the disciplines of medicine, law, technology, communications and administration supervise various task forces in the field. Once the emergency has been resolved, those teams disband and regroup for the next mission. A fluid, round-the-clock organism like this needs an adaptable building structure that can "breathe" and support all forms of operations in the most diverse constellations.

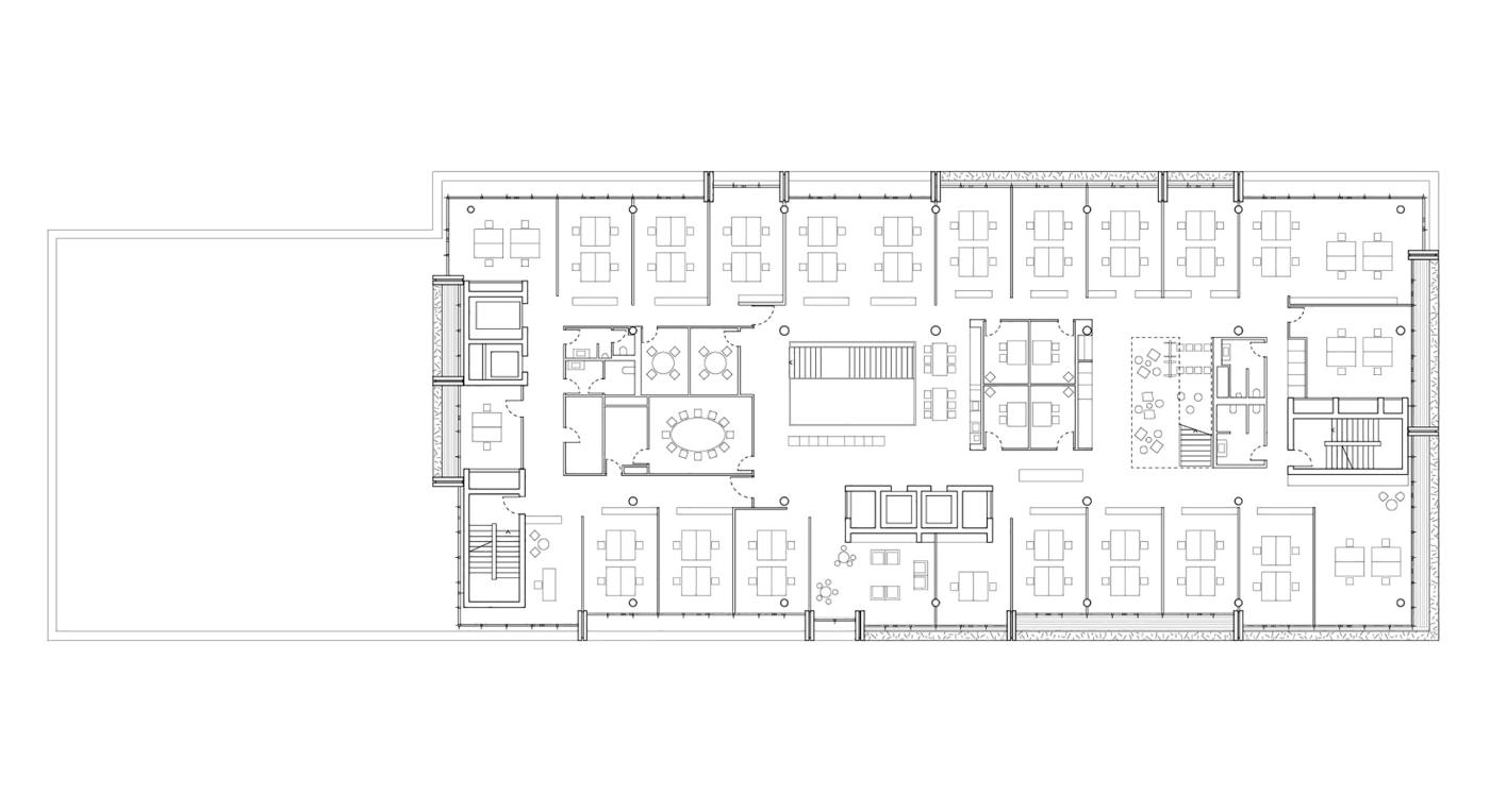
The architecture of the new building responds to this modus operandi with a transparent and communication-oriented spatial structure that actively promotes exchange amongst co-workers. Scalability of workspaces and the well-being of users were key considerations in the design, as it combines spaces of varying proportions and thus accommodates large, medium and small workgroups. Between the single and group offices are large conference rooms and communal areas for informal interaction on all floors. The foyer with the auditorium, the agora and a public restaurant animate the ground floor and open the building to the outside. Additionally, terraces on the first and seventh floors and on the roof create spaces for relaxation and open up views over Lake Geneva towards Mont Blanc and the Jura Mountains. A generous staircase leading freely through the entire building connects all of these areas, both visually and spatially, and strengthens communication between all departments.












A three-dimensional, green façade conveys these internal structures to the outside. Balconies and loggias defined by large wooden frames offer work settings that transition between interior and exterior space. Fitting together like a giant jigsaw puzzle, these frames form a clearly defined volume, analagous to an organisation of individual specialists working towards a common objective.
The vegetation screen also generates a microclimate in the façade's buffer zone. During the summer, the dense foliage provides shade and reduces the building's cooling requirements; in autumn, this natural screen thins to let in daylight during the dark season. Moreover, the effect of the façade extends beyond the building by improving the air quality in the new urban district through the absorption of CO2.

The performance of the façade constitutes a significant factor in meeting the very high standard based on "Minergie-P" in accordance with Swiss certification. In addition to the spatial function as a brise-soleil and climate buffer, triple glazing with an external textile sunshade has been provided as well. Photovoltaic panels are installed on the roof and the project is connected to the GeniLac ecological heating and cooling network. This infrastructure uses water from Lake Geneva and 100% renewable electricity. As a result, the building is powered entirely by renewable energy sources.
The choice of building materials also makes an important contribution regarding sustainability. The call for tenders gave preference to "cradle to cradle" production methods that offer recycled or easily recyclable materials. The use of local timber such as silver fir contributes to lowering the greenhouse effect by storing CO2.
Likewise, the building's volume is planned into the future. At the time of its opening, the total capacity of the building slightly exceeds the space requirements of Médecins sans Frontières, allowing for parts to be sublet to other NGOs. The option of a seven-storey extension above the restaurant area on the ground floor guarantees that the building will remain adaptable in scale and grow with the changing needs of its users.



As an essential planning objective, the new headquarters building for Médecins Sans Frontières implements aspects of sustainability on several levels - from a flexible range of spaces and a green façade to careful material selection and detailing. Most importantly, the result is a transparent and spacious building that meets the requirements of the open working environment for those committed to this organisation on a day-to-day basis.

brief
- Operational centre for the humanitarian medical organisation Doctors Without Borders / Médecins Sans Frontières
data
- gross floor area: 14.260 m²
- competition: 2017, 2nd prize, planning commissioned
- 2018 — 2022
Location
- Rte de Ferney 140, 1202 Genève, SwitzerlandOpen map
awards
- The Plan Award 2024
- International Prize Sustainable Architecture 2023, Shortlist
project team
- Marc Broquetas
- Tom Geister
- Fotios Gkrilias
- Philipp Hesse
- Natalie Hipp
- Julia Knaak
- Florent Le Corre
- Moojin Park
- Anna Luise Pfau
- Matthias Sauerbruch
- María Silvestre Martinez
