
The Brandhorst Museum houses a substantial private collection of late 20th-century and contemporary art, predominantly paintings. The building consists of a long volume that lines the street and a taller one that marks the north-eastern corner of Munich’s museum quarter. These are both clad in a textured and polychromatically treated skin, whose gradations in hue and tone give the building the appearance of three simple interlocking volumes.
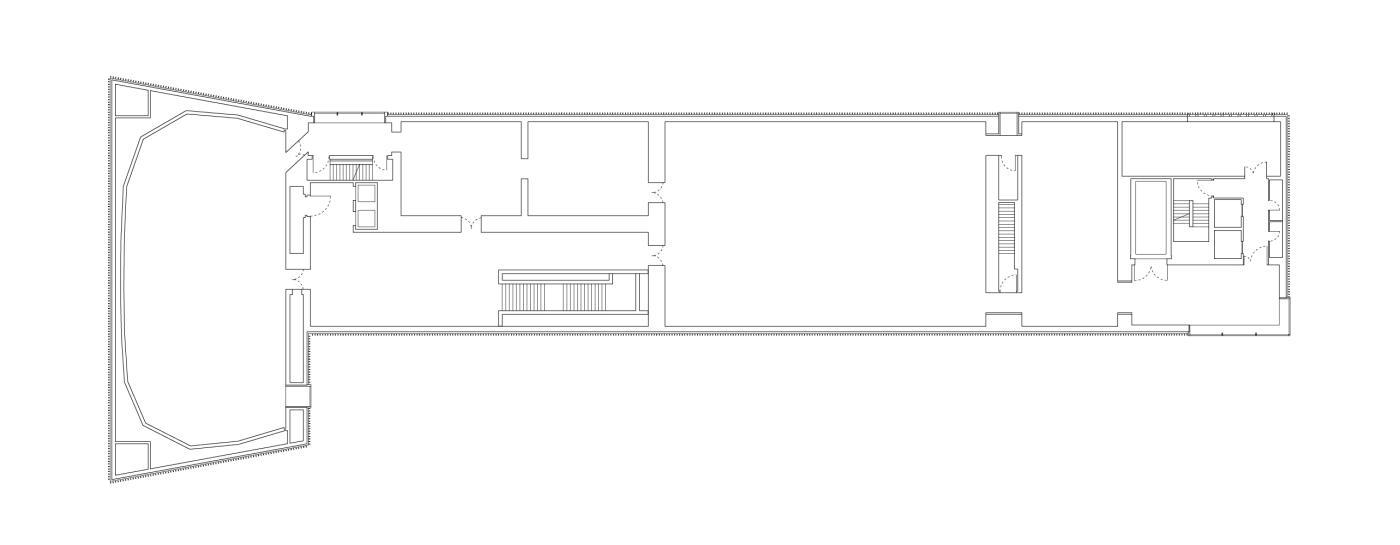
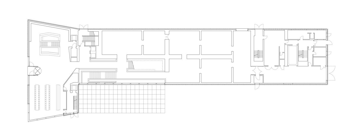
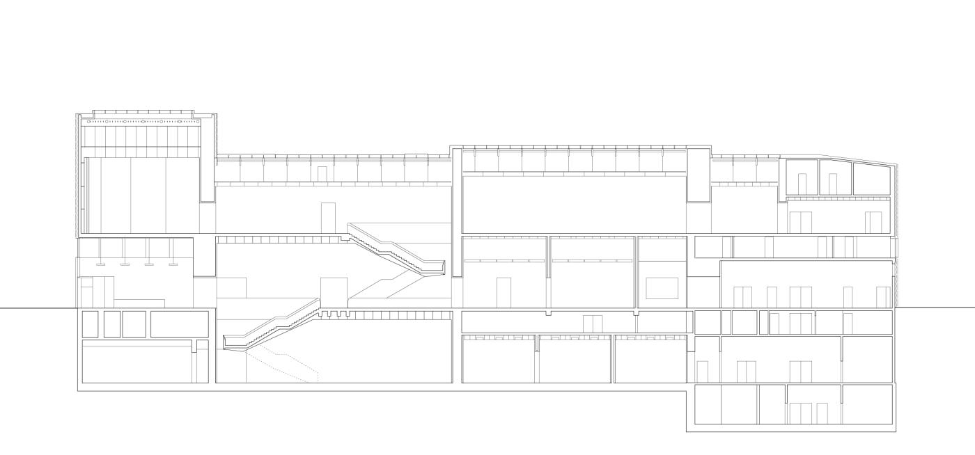
The museum contains naturally lit galleries on three floors, whose rooms are distinguished by variations in sequence, dimension and proportion. A daylit patio on the lower level serves as the starting point for a suite of artificially illuminated galleries dedicated to photography, media and graphic art. The universal exhibition spaces on the ground floor are illuminated from the side by an innovative daylight guidance system, whereas the large rooms on the top floor, including the polygonal hall designed for Cy Twombly’s Lepanto Cycle, are all naturally lit from above.
The external envelope is composed of ceramic batons mounted in front of a horizontally folded metal skin. Embodying the principle of kinetic polychromy, this lends the building a dynamic appearance with countless gradations between a smooth, almost dematerialised impression when seen from afar and one of a three-dimensional woven structure from close proximity. Like a vast abstract painting, the façade communicates the spirit of the museum as a place where art comes alive.






Whereas the main objective of the museum’s interior is to create ideal exhibition conditions, that of its polychromatic exterior is to draw attention to the museum’s special character as a place of aesthetic reflection and creativity. The multilayered façade also has a technical function, however: suspended in front of the substructure and the thermal insulation is a horizontally folded bi-coloured metal sheet with fine perforations that absorb noise from traffic on the adjacent roads. Mounted vertically in front of this horizontally structured skin are 36,000 ceramic batons (4 × 4 × 110 cm) glazed in twenty-three colours, which create an oscillating outer envelope.
The overall effect of this superposition of horizontal and vertical lines, in combination with the contrast and merging of the colours, is that the solid outer walls of the building seem to vibrate and become almost immaterial, as their surface appearance changes with the movement of the observer. Countless variations of pattern and texture arise when moving between the oblique view, in which the vertical ceramic batons merge into a solid surface, and the frontal view, in which the mineral layer opens up, thereby revealing the horizontal lines of the background to full effect. Seen from afar, each colour group blends to a uniform and neutral tone with its own particular brightness and hue. As the visitor comes closer, each of these tonal fields resolves into its component colours.

In the tradition of Munich’s other public galleries, almost all of the museum’s rooms are illuminated by daylight – even on the lowest floor. At basement level, the floor space is offset in plan so that the patio can receive light directly from above. On the ground floor, an innovative system of prismatic reflectors directs zenith light into the galleries through an asymmetrically placed clerestory, providing an even level of illumination.
In all of the exhibition spaces, bright daylight (up to 100,000 lux in summer) is filtered by dynamic light louvres and dimmed to gallery strength (approximately 300 lux). Daylight ceilings made of translucent fabric ensure the uniform distribution of light and smooth out any strong variation in light levels. In addition, artificial light sources are mounted above the daylight ceilings to supplement or substitute for the natural light as necessary. Depending on the floor concerned, daylight by itself provides adequate illumination during 50 to 75 per cent of the useum’s normal opening hours.



The exacting requirements for the stability of temperature, relative humidity and air quality in exhibition spaces and storage rooms of international standard can only be met by the installation of technical systems of a very high level. In order to keep costs as low as possible, an energy-saving strategy was developed together with the building services consultant. The building is mainly heated and cooled with the help of a groundwater heat pump, which is fed with groundwater – supplied at the very high temperatures prevailing in Munich’s museum quarter – that is then cooled in the process. Not only does this take advantage of an existing source of free energy, it also normalises the heat balance of the local groundwater.
Further, the interior climate is regulated not only by means of the air supply but primarily through activation of the building components themselves. A system of water-carrying pipes that are installed some ten centimetres beneath the various surfaces enables activation of the thermal capacity of all of the floors and most of the walls in the museum. This system heats or cools the rooms directly by radiation via the walls or floors, establishing a highly stable climate for the works on show. The volume of air circulated can thus be approximately halved in comparison to conventional air-conditioning systems. Moreover, much improved temperature stability is achieved in the exhibition spaces – which gains extra significance in the event of a temporary technical failure.


brief
- Museum for a private art collection
data
- gross floor area: 12.110 m²
- competition: 2002, 1st prize
- 2005 — 2009
Location
- Theresienstraße 35a, 80333 MünchenOpen map
awards
- International Prize for Sustainable Architecture 2011, Silver Medal
- Artouro, Bayerischer Architektur Tourismus Preis 2011
- Designs of the Year 2010, Design Museum London, shortlist
- Lubetkin Prize 2009, shortlist
- Mies van der Rohe Award 2009, nomination
project team
- Peter Apel
- Jürgen Bartenschlag
- Ramiro Forné
- Andrea Frensch
- Michaela Kunze
- Mareike Lamm
- Marie Langen
- Maria Saffer
- Matthias Sauerbruch
- Anja Vogl
- Constantin von der Mülbe
- David Wegener
