The former Telekom high-rise will be converted from a structure for office use into one for residences. Through its scale and presence, the building stands in stark contrast to its surroundings. Nevertheless, the decision to preserve the tower and avoid demolition makes sense: on the one hand, a sustainable solution is reached if the primary structure of the existing building and thus the ‘grey energy’ contained in its reinforced concrete components can be preserved and reused; on the other, this construction form – ie a tower - offers a different kind of sustainability if it can be put to residential use in a densely populated city that has generous green spaces.
Two new, freely positioned linear structures respond to the surroundings on an urban planning level through their volumes and profiles. At the same time, they establish connection to the solitary high-rise by means of their scale and materiality, while the design of open spaces integrates the ensemble with the overall urban landscape.
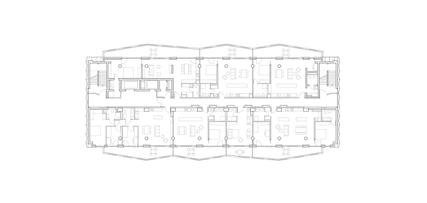
The redesign of the office tower is carried out through minimal interventions: all of new floor layouts correspond to the existing structural grid. Further, large residential units can be extended by combination with their neighbouring ones or they can be divided into smaller units. So in addition to the required composition of flats, many further variations are possible.
The dominance of the office tower is counteracted by colour, materiality and detail. A screen of loggias is added to the long sides of the high-rise, extending each apartment with an exterior space that can be adapted according to individual needs. The screen lends a lighter appearance to the building while at the same time revealing the variety of uses behind. The glased ceramic cladding of the balustrades picks up the various colour shades of the adjacent park and adds a sense of movement to the façade. The shimmer of the overall image works in correspondence with the atmosphere of the surrounding urban landscape.




brief
- Development of a residential quarter with day-care centre and commercial units, an existing 16-storey office high-rise is converted for residential use
client
- BPD Immobilienentwicklung GmbH
data
- gross floor area: 20.180 m² residential: 8812qm
commercial: 812qm - competition: 2019, 1st prize
- 2019 — 2026
Location
- Jahnstraße / MolkestraßeOpen map
project team
- Jürgen Bartenschlag
- Julia Blasius
- Katja Correll
- Maria Fernandez
- Stefan Fuhlrott
- Tom Geister
- Vera Hartmann
- Nan Liu
- Lucia Martinez Estefania
- Emanuela Mendes
- Katarina Petrovic
- Marco Rabaglino
- Saskia Vendel
- Juan Lucas Young



